Studie rozšíření budovy MŠ pro potřeby vzdělávání
Vzniku studie předcházel poměrně dlouhý vývoj – zejména ústup od myšlenky vybudování velké mateřské školy v lokalitě za sv. Annou, která se nakonec ukázala jako ekonomicky nerentabilní. Ve snaze zvýšit kapacitu stávající mateřské školy byla vypracována studie na dostavbu budovy. Díky využití jedné třídy v sokolovně, zprovoznění nové budovy vedle úřadu městyse, kde nyní sídlí jedna třída mateřské školy spolu s dětskou skupinou, a díky výborně fungujícímu Dětskému centru Dráček jsou však kapacity pro předškolní vzdělávání více než dostatečné. Proto vznikla myšlenka změnit účel zamýšlené dostavby – z předškolního na základní a zájmové vzdělávání.
Předkládaná studie je výsledkem týmové práce. Kromě zřizovatele a projektanta se na její podobě podíleli zaměstnanci mateřské i základní školy, školní družiny a vedení školy – všichni z pohledu budoucích uživatelů.
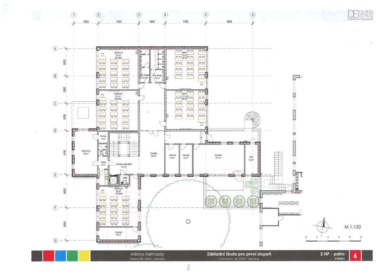
Bylo nutné dodržet regule územního plánu, nezasahovat do veřejné zeleně a minimalizovat nutnost kácení vzrostlých stromů či jejich arboristických úprav. Možná dostavba nabídne šest tříd, dvě herny, zázemí pro učitelky a výdejnu pro školní stravování, zásobovanou z modernizované kuchyně mateřské školy.
Primárním účelem nové budovy bude samostatné zázemí pro prvňáčky včetně jejich odpolední družiny. Pokud by v budoucnu počet žáků poklesl, budou okamžitě k dispozici další prostory pro školní družinu, kroužky, komunitní aktivity a vše, co aktuální situace a potřeby přinesou.
Do našeho prvního ročníku nastupuje každoročně pět až šest tříd – jednu naplní děti z okolních obcí, zbytek tvoří děti z Nehvizd. Demografická prognóza ukazuje, že tento trend bude dlouhodobě přetrvávat. Naším cílem není zvýšit kapacitu, ale snížit počty žáků ve třídách a vrátit škole prostory pro výtvarnou učebnu, dílny apod. Bez dalších učeben to však bude velmi obtížné.
Smyslem projektové přípravy na možnou dostavbu je být připraveni na případné vyhlášení dotací na budování školské infrastruktury. Bez spoluúčasti státu nebude realizace tohoto projektu možná.
Součástí stavební akce by byla i revitalizace parku a jeho využití nejen pro veřejnost, ale i pro předškoláky a školáky.
V době případné realizace již bude dokončen obchvat, tedy přeložka komunikace II. třídy č. 611, a stávající silnice Pražská se stane místní obslužnou komunikací s nízkým provozem.
Přejme si, aby snaha všech účastníků byla korunována úspěšným uskutečněním tohoto projektu. O tom však rozhodne čas a finanční situace v rámci rozdělování dotací ministerstva školství.
Jiří Poběrežský, starosta městyse
Luboš Rýdlo, ředitel ZŠ Nehvizdy
Datum poslední aktualizace: 27. 6. 2025 19:00



